Descrizione
CITTADELLA - nella zona industriale di Cà Onorai, proponiamo in affitto un CAPANNONE industriale ideale per chi cerca uno spazio funzionale e ben organizzato per la propria attività artigianale o di servizio. Oltre 1.000 mq suddivisi tra magazzino, uffici e deposito. Perfetto per artigiani, impiantisti, ditte di servizio o attività produttive leggere. Accesso comodo, zona strategica, disponibilità immediata. Cl. En. G EURO 3.500
Questa soluzione si adatta particolarmente a professionisti come idraulici, elettricisti, tecnici di impiantistica, oppure ad aziende che necessitano di deposito, magazzino operativo o produzione leggera. La posizione è comoda agli accessi stradali principali, con spazi di manovra ideali anche per furgoni o mezzi da lavoro.
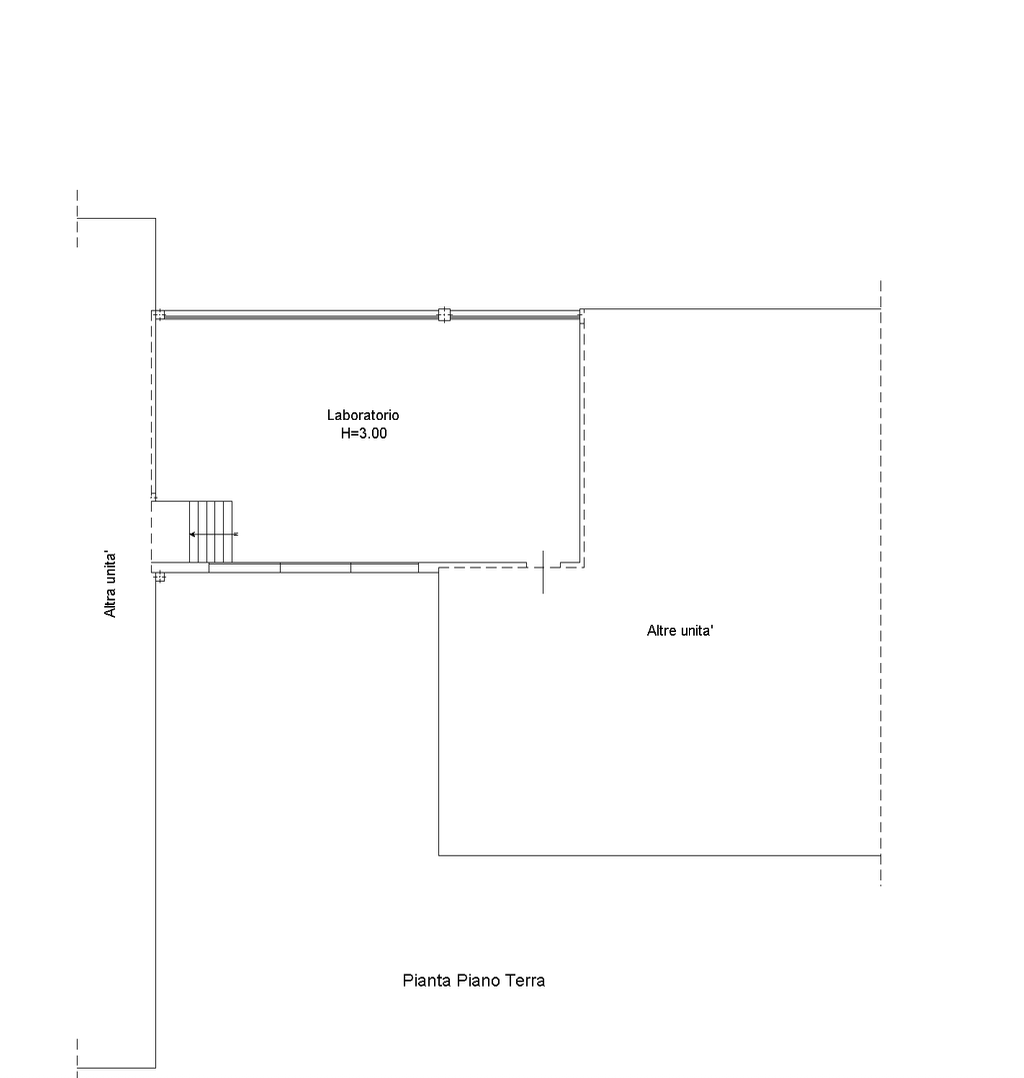
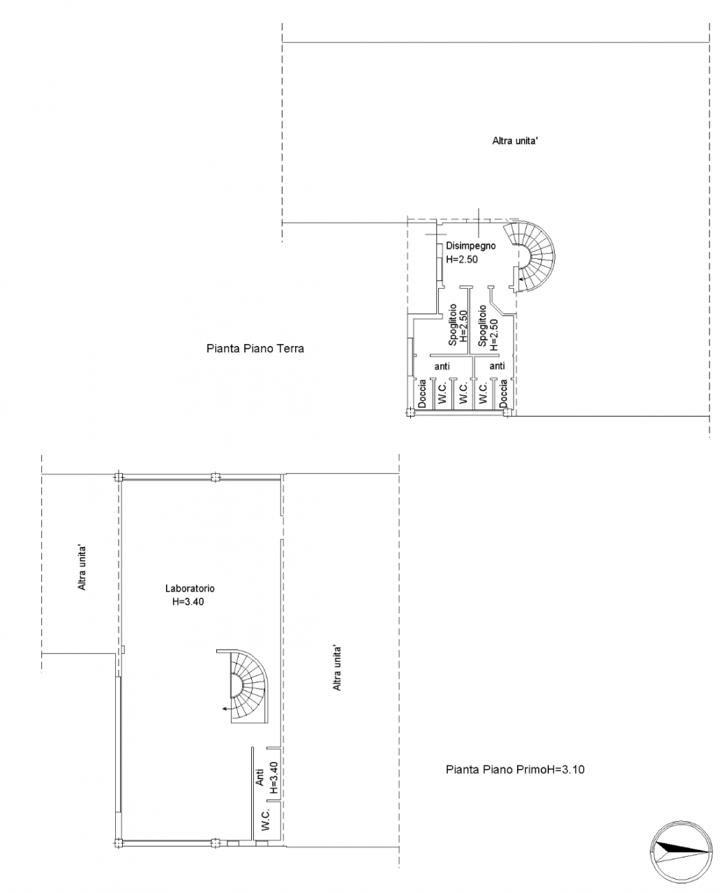
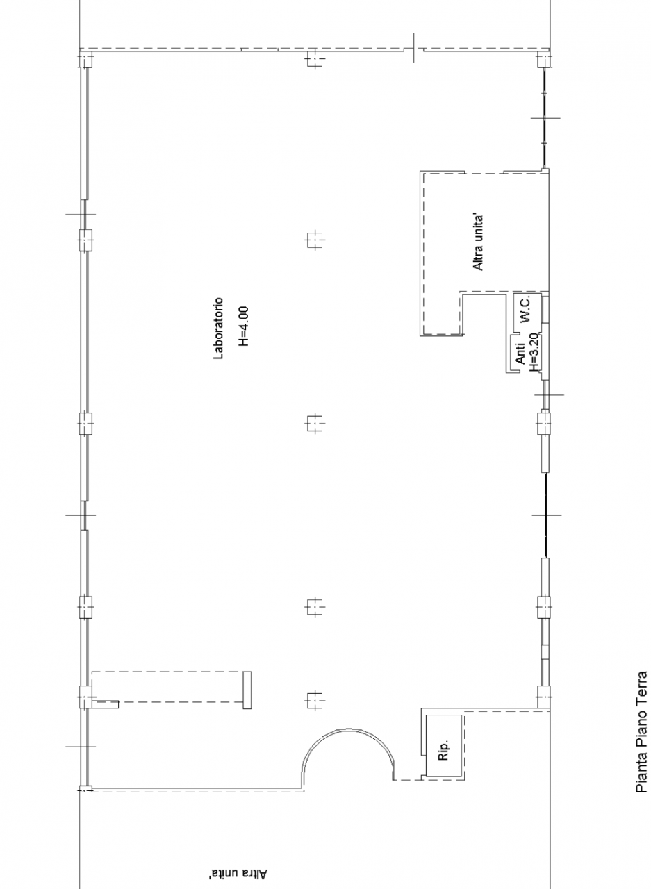
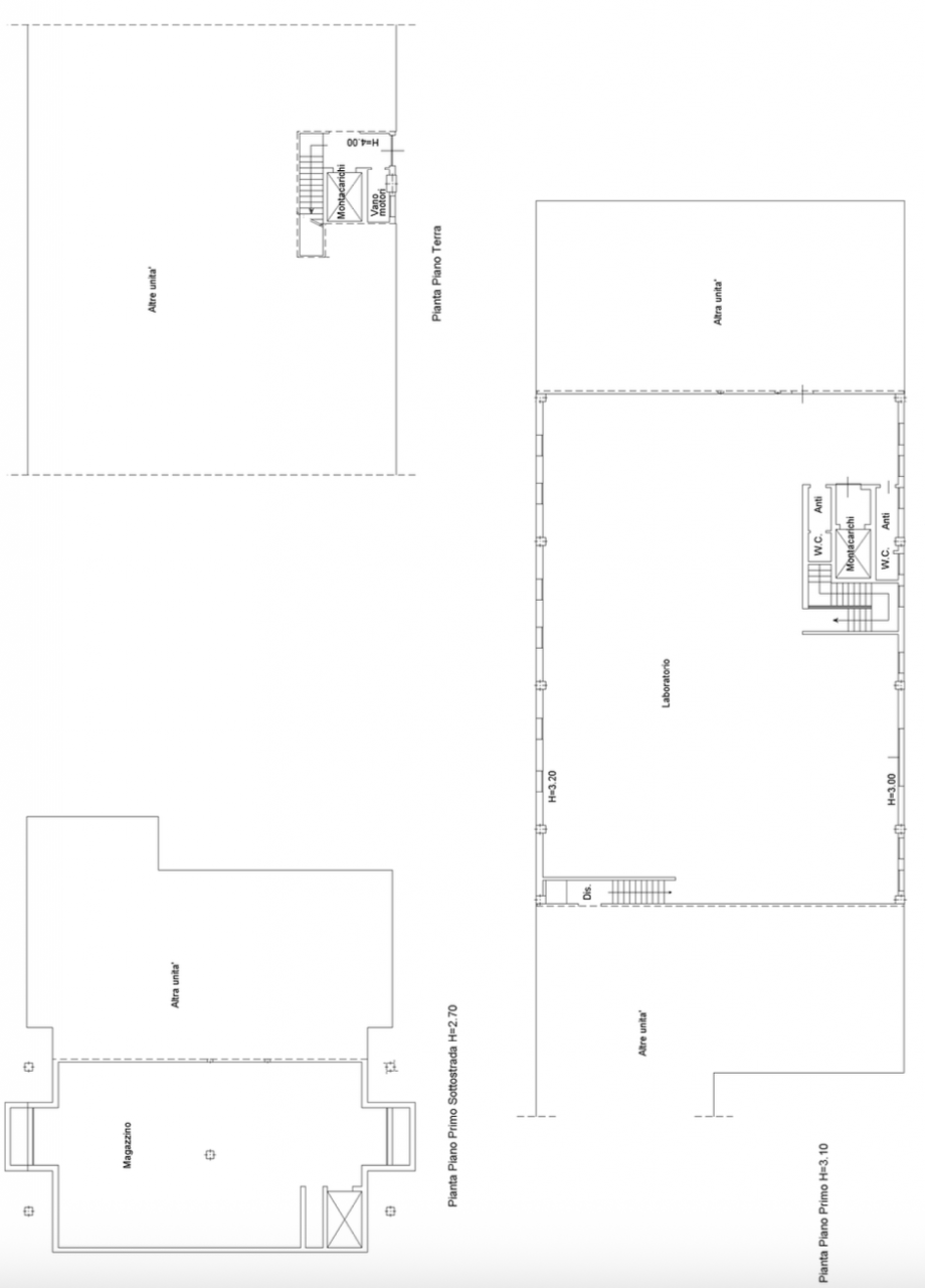
L’immobile si sviluppa su tre livelli:
Piano terra troviamo circa 420 mq adibiti a magazzino o zona operativa, con spazi ampi e facilmente adattabili.
Piano primo ospita circa 450 mq tra uffici e locali accessori in ottime condizioni, già predisposti per accogliere team di lavoro o clienti.
Piano interrato, collegato da montacarichi, offre ulteriori 190 mq perfetti come deposito.
Gli impianti risultano funzionanti e gli spazi già pronti per essere utilizzati senza necessità di interventi importanti.
Per maggiori informazioni o per organizzare un sopralluogo, contattaci senza impegno. Disponibilità immediata.
Una soluzione concreta, spaziosa e facilmente adattabile per far crescere la tua attività.


























