Descrizione
MALO - CENTRO: CASA A SCHIERA da RISTRUTTURARE 315mq con possibilità di ampliamento di 700m. EURO 210.000.
TRE BUONI MOTIVI PER ACQUISTARE QUESTO IMMOBILE:
1) Posizione centrale
2) Indipendenza
3) Ampio giardino
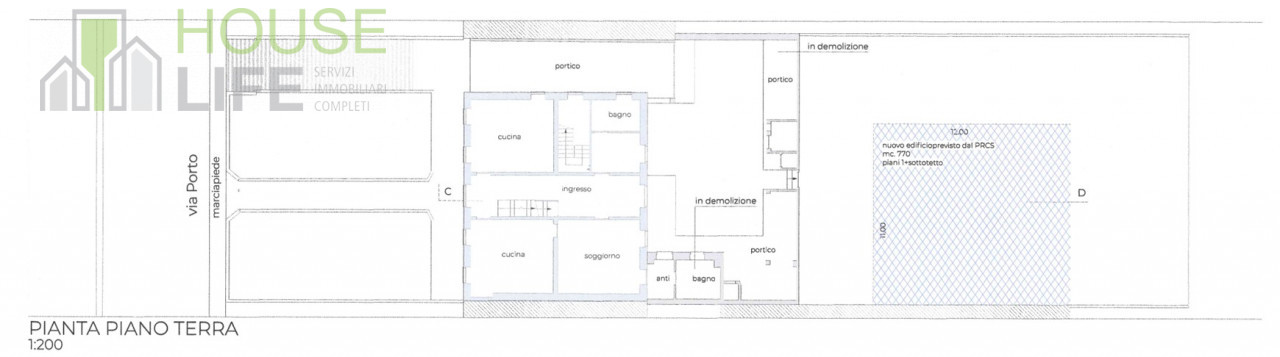
Trattasi di casa a schiera centrale sviluppata su tre livelli fuori terra attualmente composta da cinque vani al piano terra più bagno, sette vani più bagno al piano primo e una soffitta con cinque vani al secondo piano. L'immobile è da ristrutturare.
Nella ristrutturazione è possibile ampliare l'immobile con ulteriori 770mc fabbricabili su due piani fuori terra.
Superficie coperta esistente mq 237,35
Superficie coperta da demolire mq 53,77
Superficie coperta nuova mq 132,00
Superficie coperta finale mq 315,58
Volume esistente mc 1902,67
Volume da demolire mc186,20
Volume nuovo 770,00
Volume finale mc 2486,47
Superficie lotto mq 955
Le planimetrie sono riferite a come risulta oggi l'immobile.
A tutela della privacy, informiamo che l'indirizzo è puramente indicativo. Cl. En. G.
Houselife
☎️ 0445 575106
✉️ info@houselife.it













