Descrizione
COSTABISSARA: in zona centrale e riparata dal traffico, proponiamo la vendita in blocco di un'INTERA PALAZZINA su lotto di 1400mq, composta da DUE APPARTAMENTI SOVRAPPOSTI di circa 200 mq ciascuno, con ingressi indipendenti, ampio giardino esclusivo, locali accessori e garage al piano terra. Ideale per due famiglie. EURO 340.000
TRE BUONI MOTIVI PER ACQUISTARE QUESTO IMMOBILE:
1) Due appartamenti distinti di ampia metratura
2) Lotto esclusivo di circa 1.400 mq con doppi accessi carrabili e pedonali
3) Zona tranquilla, comoda ai servizi
L’immobile è composto da:
Piano Primo e Secondo: due appartamenti indipendenti, ciascuno di circa 200 mq, con ingresso autonomo, zona giorno, cucina separata, studio, ripostiglio, tre camere da letto e doppi servizi.
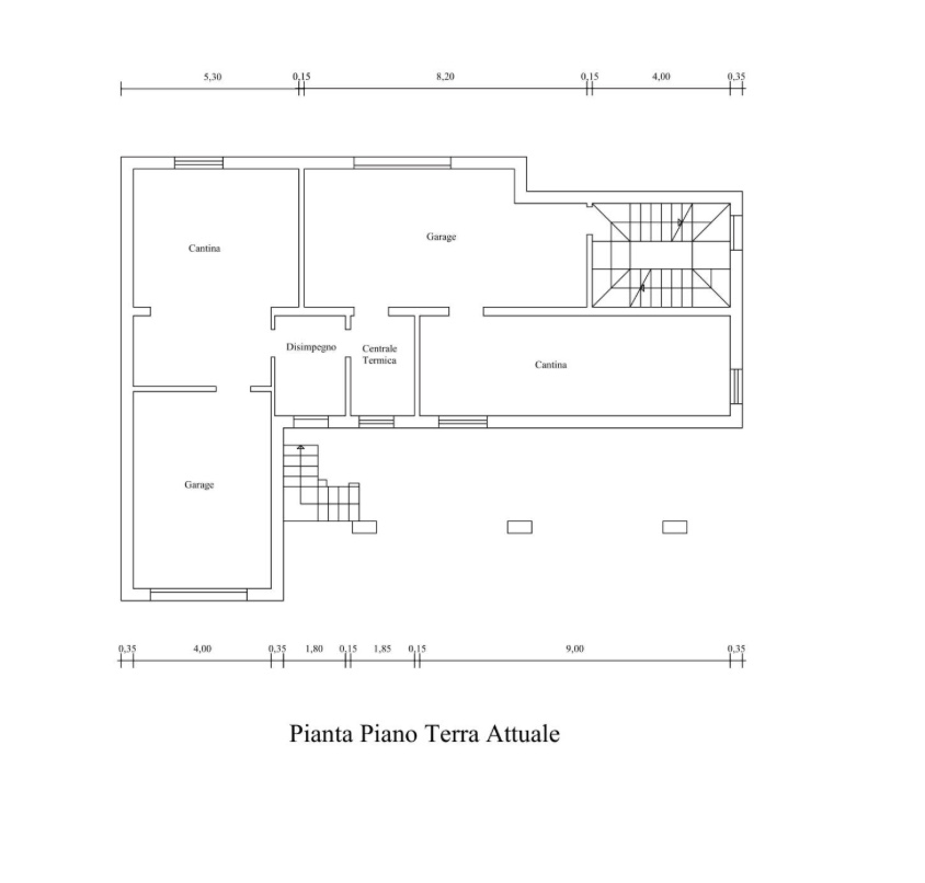
Piano Terra: due garage, cantine e locali accessori a servizio delle abitazioni.
Esterni: ampio giardino esclusivo su quattro lati e doppio accesso carrabile e pedonale.
Le finiture sono originali degli anni ’70, con parquet nelle camere e serramenti in legno con vetro singolo.
L’immobile necessita di interventi di ristrutturazione generale e offre diverse opportunità di personalizzazione e/o eventuale frazionamento, considerata la dimensione degli appartamenti.
Prezzo richiesto: EURO 340.000 (vendita solo in blocco dell’intera proprietà)
Cl. En. G IPE: 155,00 kwh/m2 anno
Houselife RE
☎️ 0445 575106
✉️ info@houselife.it



















