Descrizione
SCHIO/SANTORSO: CAPANNONE SINGOLO con ampia AREA ESTERNA EDIFICABILE. Lotto totale di 10.900mq, capannone industriale di 2.250 mq, altezza 5.5m, oltre a uffici di 340 mq. Locato con scadenza al 01/12/2026. EURO € 3.300.000. Per informazioni 0445 575106.
TRE BUONI MOTIVI PER ACQUISTARE QUESTO IMMOBILE:
1) Ampia area esterna con possibilità di edificare
2) Posizione strategica ideale per logistica e industria
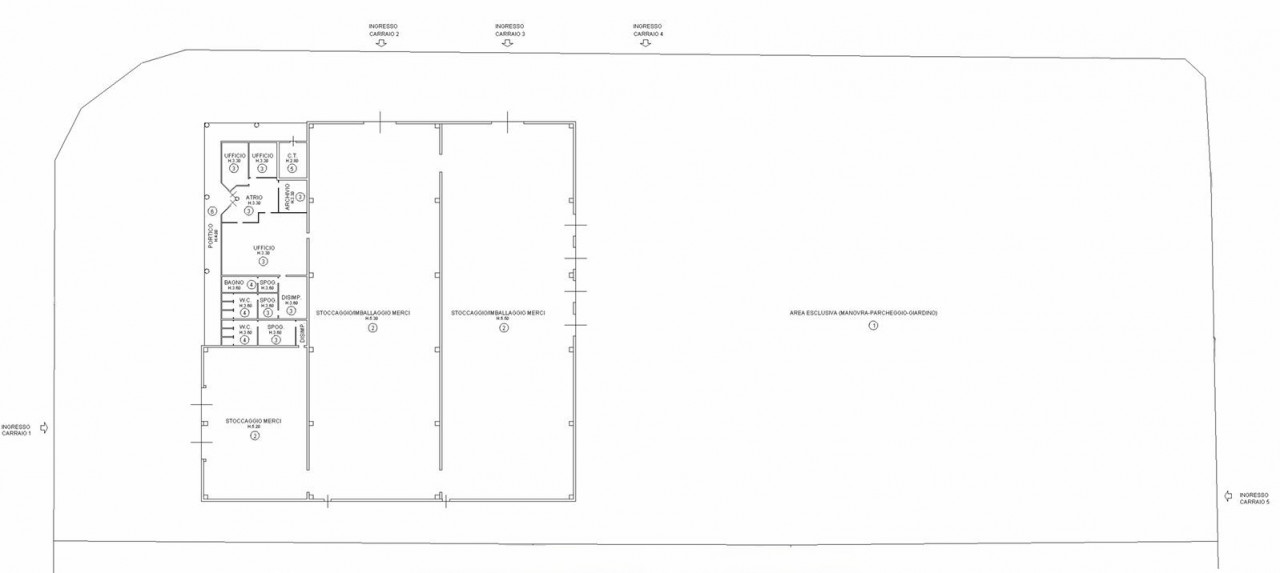
3) Presenza di 8 bocche di carico e 5 accessi carrai
Posto nella zona industriale di Schio/Santorso, proponiamo in vendita un capannone, costruito nel 1998, che si sviluppa su un lotto totale di 10.900 mq. L’immobile è composto da una zona produttiva di 2.250 mq con un’altezza interna media di 5,50 metri e da una parte di uffici di 340 mq.
L’area esterna attualmente libera di circa 8.250 mq offre ampi spazi per la movimentazione dei mezzi, zone di carico/scarico, parcheggi e un’importante potenzialità di edificare: è infatti possibile realizzare un ulteriore capannone, personalizzabile in base alle esigenze produttive o logistiche dell’azienda.
L’immobile è già predisposto per attività logistiche o industriali, grazie alla presenza di otto bocche di carico/scarico merci e a cinque accessi carrai distribuiti su tutto il perimetro del lotto, che facilitano il flusso continuo di mezzi pesanti e garantiscono grande funzionalità operativa.
Soluzione ideale per aziende che cercano un immobile indipendente, con grandi spazi esterni, facilmente accessibile e pronto all’uso, ma anche con margine per ulteriori sviluppi futuri.
L'immobile attualmente è locato con scadenza al 01/12/2026.
A tutela della privacy, informiamo che l’indirizzo indicato e le immagini presenti nell'annuncio sono puramente indicative e a solo scopo illustrativo e pubblicitario.
Maggiori informazioni in ufficio previo appuntamento.
Houselife RE
☎️ 0445 575106
✉️ info@houselife.it














